Skip links

Immeuble Uvrier

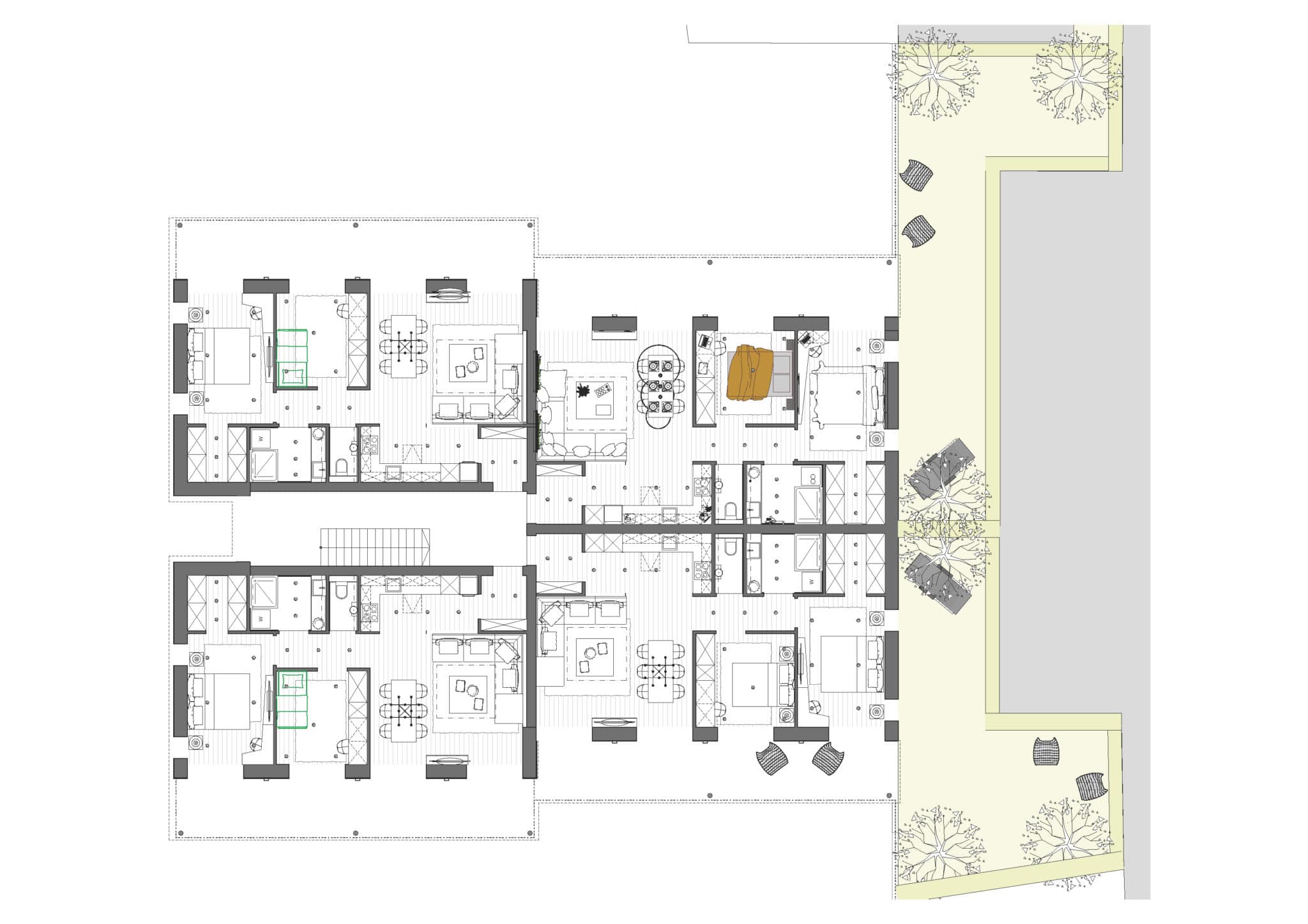
600
SURFACE M2
8
NOMBRE D'APPARTEMENT
2020
DATE
Type de projetInfos générales
ConstructionAvant-projet pour un immeuble à Uvrier de 8 appartements avec parking souterrain partagé avec commerces sur un immeuble existant sur la même parcelle.

Client

Roduit & Bajrami Sarl

Plan

Plan

Explorer
Agrandir